IGLO LIGHT

Jeszcze więcej światła

Okna IGLO LIGHT

Opis produktu

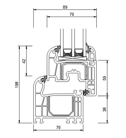
Ten 5- komorowy, autorski system wyróżniaj się piękną estetyką i wąskimi profilami ramy i skrzydła.

W porównaniu do tradycyjnych systemów charakteryzuje się o 32% węższym ruchomym słupkiem, co powoduje większy dopływ światła dziennego do pomieszczenia.

Wyposażenie standardowe

  • okucia MACO MULTI-MATIC KS z 2 zaczepami antywyważeniowymi z powłoką antykorozyjną Silber- Look zapewniającą długotrwałą ochronę oraz płynną pracę okucia
  • podnośnik skrzydła (blokada błędnego położenia klamki - w zależności od wysokości okna)
  • mikrowentylacja w oknach uchylno-rozwiernych
  • osłonki na zawiasy w 4 kolorach: białym, srebrnym, jasnym brązowym, brązowym
  • klamka aluminiowa Dublin
  • pakiet 2-szybowy (1-komorowy) wypełniony argonem, o współczynniku Ug = 1,1 W/(m²K)
  • ciepła ramka tworzywowa Swisspacer Ultimate - jako opcja bezpłatna
  • 2 uszczelki EPDM w kolorze czarnym (zew. i wew.)
  • zgrzew V-Perfect
  • uszczelka wypełniająca dolny rowek okuciowy
  • 1,5 mm stalowe wzmocnienie ościeżnicy i skrzydła (2 mm w przypadku skrzydła drzwi balkonowych) w kształcie „ceownika"
  • rdzeń profilu w kolorze białym
  • 5-komorowa listwa podparapetowa PVC z uszczelką
Przekrój profilu okna IGLO Light
Okno IGLO Light

Kontakt

Adres:

ul. Bandurskiego 5, 32-065 Krzeszowice

Telefon:

+48 503 010 703