MB-79N SI

Wybierz energooszczędność

MB-79N SI

Opis produktu

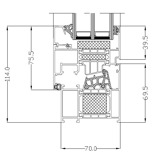
Nowa linia okien aluminiowych o podwyższonej izolacji termicznej, wyposażona we wkłady izolujące i dwukomponentową uszczelkę centralną, zapewni niższe rachunki za ogrzewane. Nowoczesny design, ponad 200 kolorów w połączeniu z wieloma opcjami dodatkowymi zadowoli najbardziej wymagających klientów.

Wyposażenie standardowe

  • okucia MACO MULTI-MATIC KS z 2 zaczepami antywyważeniowymi z powłoką antykorozyjną Silber-Look zapewniającą długotrwałą ochronę oraz płynną pracę okucia
  • pakiet 2-szybowy (1-komorowy) wypełniony argonem, o współczynniku‚ Ug=1,1W/(m2K)
  • podnośnik skrzydła (blokada błędnego położenia klamki - w zależności od wysokości okna)
  • mikrowentylacja w oknach uchylno-rozwiernych
  • międzyszybowa ramka stalowa ocynkowana lub ciepła ramka tworzywowa Swisspacer Ultimate
  • osłonki na zawiasy w 3 kolorach: białym, srebrnym, brązowym
  • klamka aluminiowa
  • 1 uszczelka EPDM (zew. i wew.) + 1 uszczelka centralna ze spienionego EPDM w kolorze czarnym
  • kolor RAL mat: biały (9016), antracyt (7016)
Okno MB-79N SI
Okno MB-79N SI
MB-79N SI

Kontakt

Adres:

ul. Bandurskiego 5, 32-065 Krzeszowice

Telefon:

+48 503 010 703